1642 Oro Vista Rd 246, San Diego, CA 92154
Toggle Navigation
Images
Floor Plans
Map
1642 Oro Vista Rd 246
San Diego, CA 92154
Scroll to Content
Images
Slideshow
Photo Grid
Hide
Previous
Next
Show more
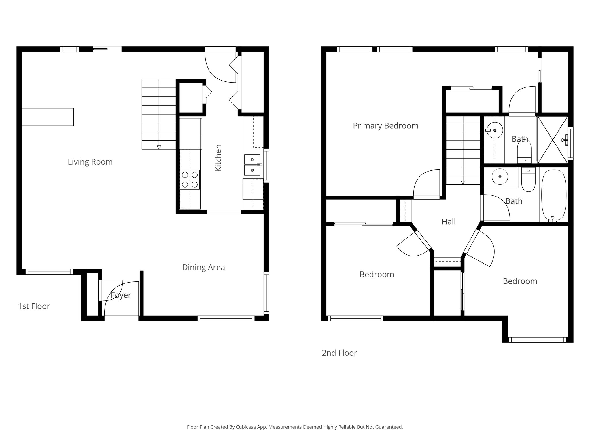
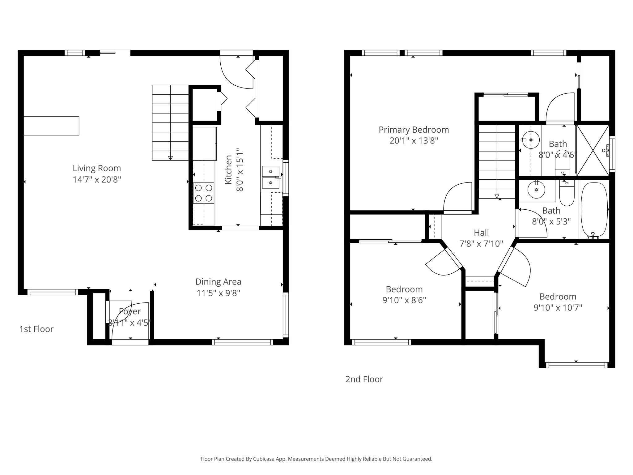
Floor Plans
Slideshow
Photo Grid
Hide
Previous
Next