7513 Gibraltar St, Carlsbad, CA 92009
Toggle Navigation
Images
Map
Floor Plans
7513 Gibraltar St
Carlsbad, CA 92009
Scroll to Content
Images
Slideshow
Photo Grid
Hide
Previous
Next
Show more
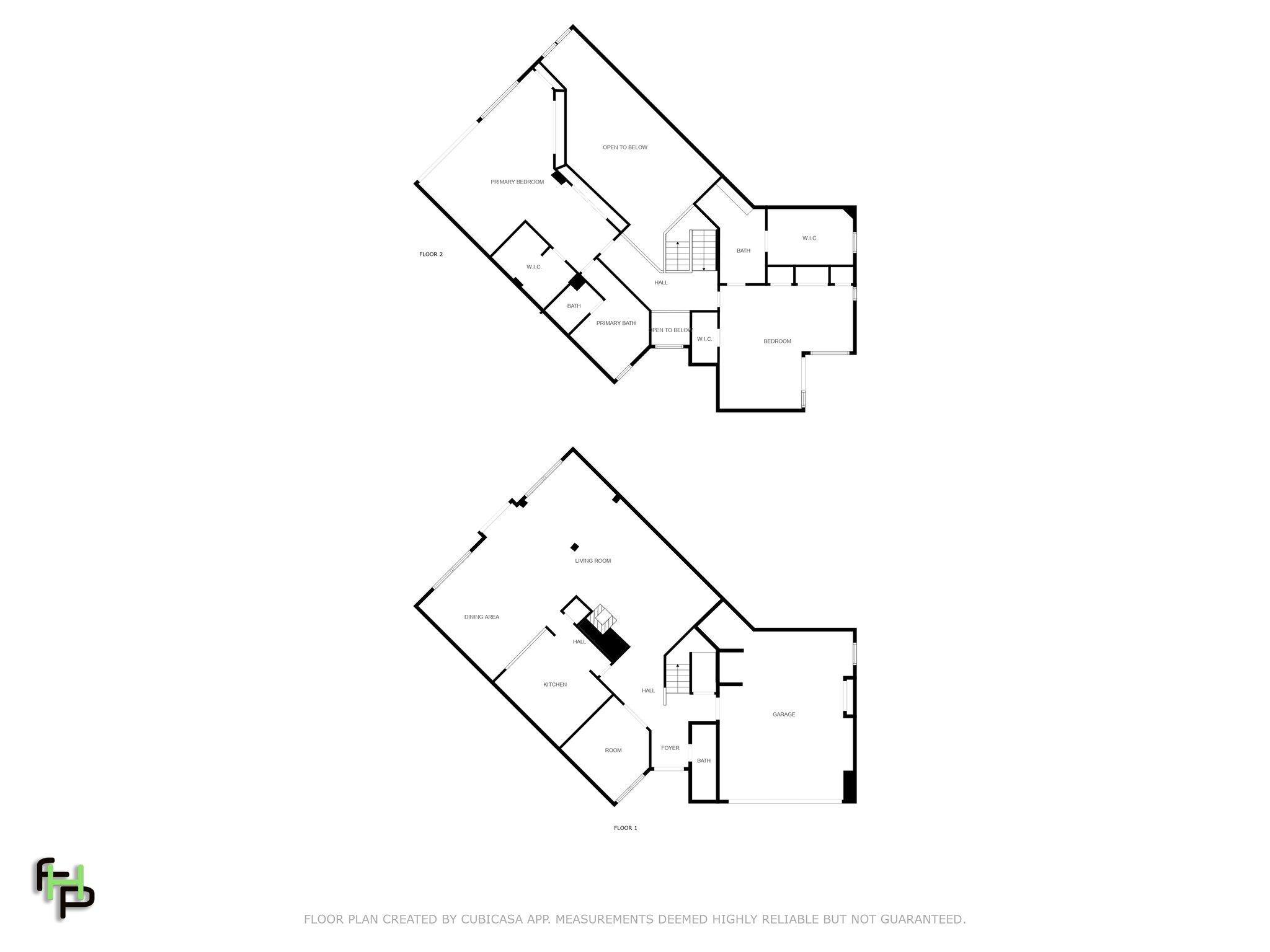
Floor Plans
Slideshow
Photo Grid
Hide
Previous
Next